+7 (343) 305-7-772
Добавляйте в избранное подходящие квартиры. Сохраняйте и делитесь списком.
×
ВЫБРАТЬ КВАРТИРУ
На этом сайте используются файлы cookie

Мы используем cookies-файлы для улучшения работы сайта, анализа трафика и персонализации. Продолжая, просматривать сайт akademicheskiy.org, вы даете свое согласие на использование cookies-файлов. Подробнее

Подтвердить

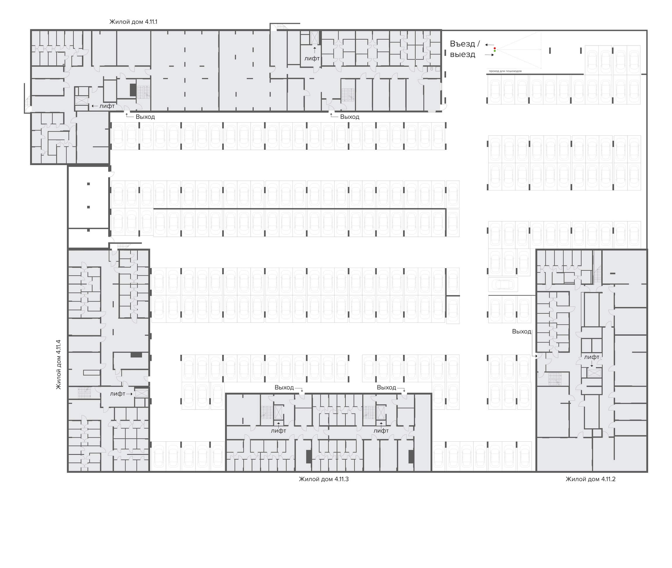
Кладовые по адресу ул. Краснолесья, 100/3

Паркинг Кладовые
Выберите квартал/корпус
ул. Краснолесья, 100/3
Сортировка
По цене
Список
На плане
План паркинга
Акция на кладовые!
СПЕЦЦЕНА до 30 апреля:
450 000 ₽ – на пул кладовых в доме 4.11.

Заявка на бронирование

Номер
Площадь
м2
Этаж
Стоимость